索引号
640425010/2024-00040
文号
2024年3号
发布机构
彭阳县自然资源局
责任部门
彭阳县自然资源局
公开方式
主动公开
公开日期
2024-07-01
有效性
有效

规 划 公 示

2024年3号

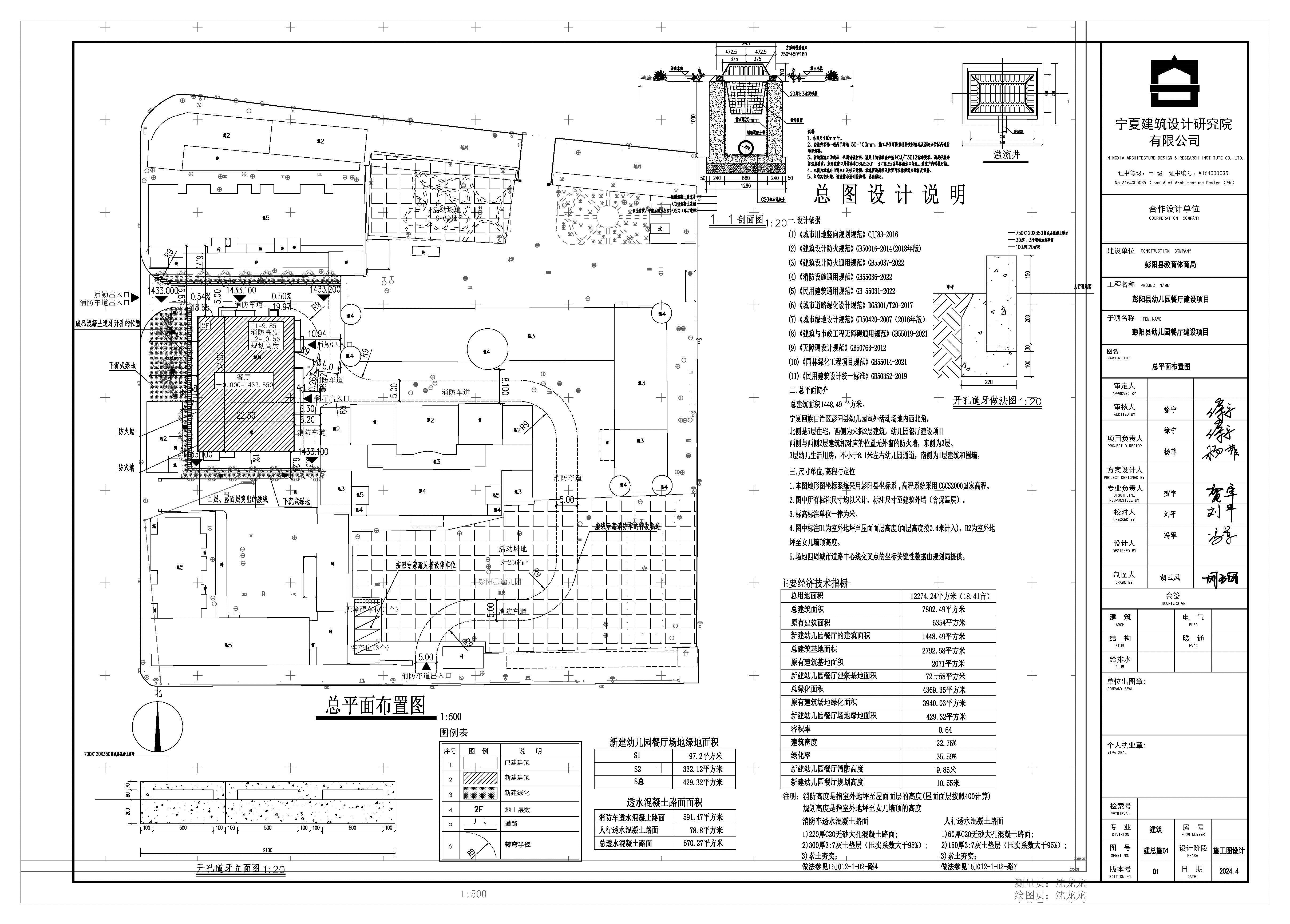
为了充分发挥公众在城市规划管理工作中的作用,实施阳光规划,提高规划的透明度,维护人民群众对城乡规划的知情权、监督权,提高规划管理水平,加强规划的批后管理,现将彭阳县幼儿园餐厅建设项目规划方案予以公示。

项目情况简介:

项目位于彭阳县县幼儿园院内,总占地面积18.41亩,地上总建筑面积1448.49平方米,容积率0.64,建筑密度22.75%,绿地率35.59%,新建餐厅面积1448.49平方米。

建设单位:彭阳县教育体育局

公示单位:彭阳县自然资源局

联系电话:0954-7015066

地    址:悦龙山新区

公示时间:2024年7月1日至7月7日

彭阳县自然资源局

2024年7月1日

扫一扫在手机上查看当前页面

用微信扫描二维码
分享至好友和朋友圈

×
打印本页

主办:彭阳县人民政府办公室 

电子信箱:pyxxxzx2010@163.com

宁公网安备64042502000001
宁ICP备11000053号-1 网站标识码6404250004

违法和不良信息举报邮箱:gywa761@163.com
中央举报中心 网站地图

适老化及无障碍服务 网站支持IPv6访问